Specifications
- Area: 3,484 sq. ft.
- Bedrooms: 5
- Bathrooms: 3.5
- Stories: 2
- Garages: 2
Welcome to the gallery of photos for the Barndominium with Wraparound Porch – 3484 Sq Ft. The floor plans are shown below:







Buy This Plan
This thoughtfully designed barndominium home plan combines rustic charm with modern function, built with 2×6 exterior walls and finished in corrugated metal siding for durability and style.
A wraparound porch enhances curb appeal while offering inviting outdoor living spaces with views to the front and side.
Step inside to a bright, open-concept layout where the living, dining, and kitchen flow seamlessly together. The kitchen features a large island with a flush eating bar and an oversized walk-in pantry, perfect for bulk storage or large appliances.
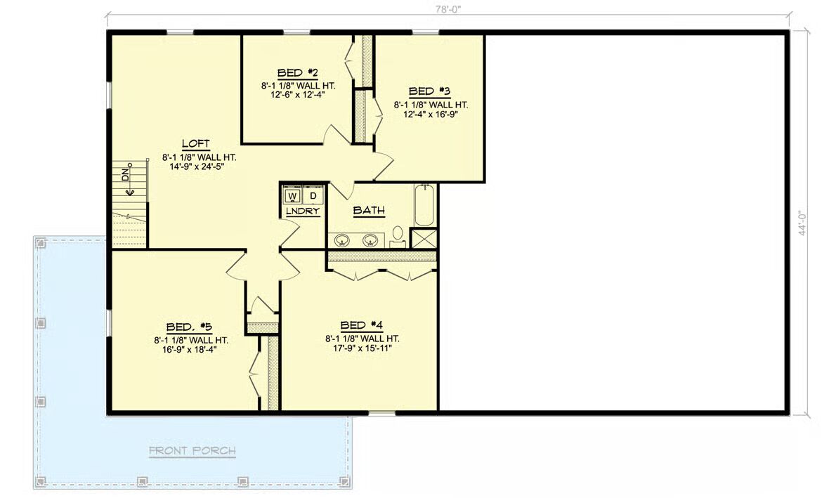
The main-level master suite is a private retreat with a spacious walk-in closet, a 4-fixture bath, and direct access to a well-appointed laundry room. Upstairs, you’ll find four additional bedrooms, a second laundry room, and a versatile loft that makes the perfect playroom or media space.
For those who need ample storage or workshop space, the oversized garage includes RV storage and provides an impressive 1,665 sq. ft. of flexible space.
Blending practicality with farmhouse-inspired charm, this home is ideal for families looking for comfort, convenience, and style in a barndominium design.
=> Looking for a custom Barndominium floor plan? Click here to fill out our form, a member of our team will be in touch.
