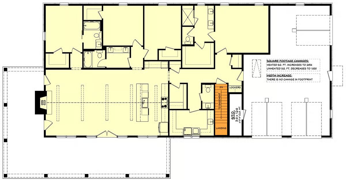
Specifications
- Area: 2,400 sq. ft.
- Bedrooms: 4
- Bathrooms: 3.5
- Stories: 1
- Garages: 3
Welcome to the gallery of photos for the Modern Farmhouse Barndominium with Wraparound Porch – 2400 Sq Ft. The floor plans are shown below:


Buy This Plan







This charming one-story Modern Farmhouse offers 2,400 square feet of thoughtfully designed living space, featuring 4 bedrooms, 3.5 bathrooms, and a versatile flex room to suit your lifestyle needs.
Built with conventional wood framing and durable 2×6 exterior walls, this home blends timeless farmhouse charm with modern functionality.
The open-concept layout showcases a vaulted ceiling in the main living area, creating a bright, airy atmosphere that flows seamlessly into the spacious kitchen, complete with a walk-in pantry and abundant storage.
Exterior highlights include exposed rafter tails, a metal roof over the wraparound porch, and a beautiful mix of board and batten siding with stone façade accents, giving this home undeniable curb appeal.
Perfectly combining style, comfort, and practicality, this Modern Farmhouse is designed for those who love relaxed yet refined country living.
=> Looking for a custom Barndominium floor plan? Click here to fill out our form, a member of our team will be in touch.
