Specifications
- Area: 2,245 sq. ft.
- Bedrooms: 4
- Bathrooms: 2.5
- Stories: 1
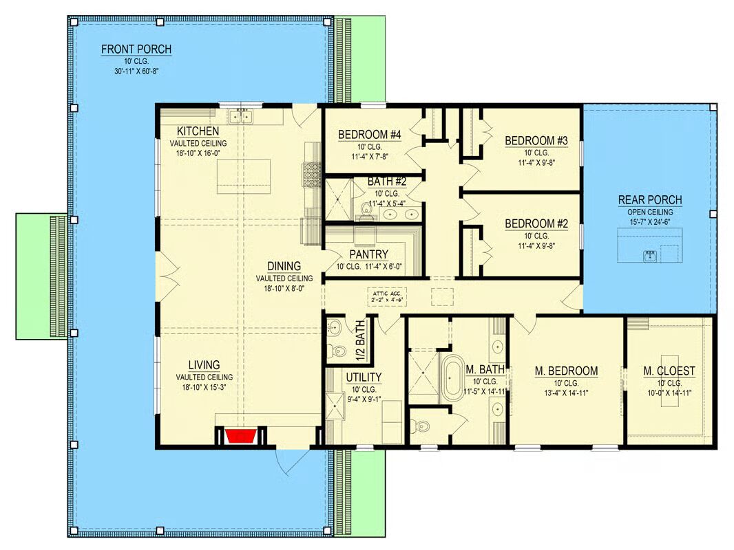
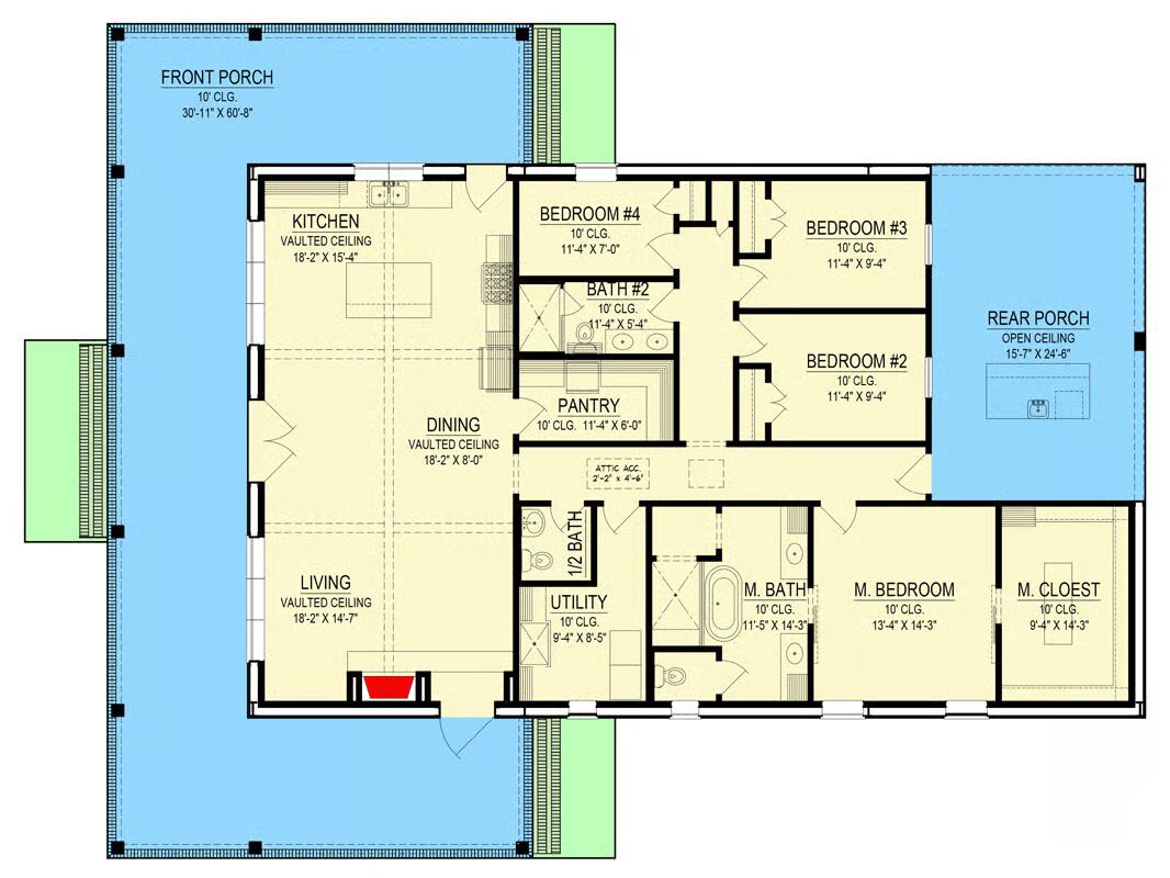
Welcome to the gallery of photos for the Modern Barndominium with Wrap-Around Porch, Outdoor Kitchen. The floor plans are shown below:







Discover exceptional barndominium living in this inviting 2,245 sq. ft. home, featuring 4 bedrooms, 2 full baths, and 1 half bath, all wrapped in timeless charm with modern sophistication.
Step inside to an expansive open-concept living area highlighted by soaring vaulted ceilings, creating a bright and airy atmosphere. The seamless flow between the living, dining, and kitchen spaces makes this home perfect for both everyday comfort and effortless entertaining.
At the heart of the home, the gourmet kitchen impresses with a large center island and a spacious butler’s walk-in pantry, ideal for culinary enthusiasts and hosting gatherings. A conveniently located utility room and half bath sit just off the main living area for added functionality.
The first-floor primary suite provides a peaceful private retreat, complete with a luxurious en-suite bath and a generous walk-in closet.
Three additional bedrooms and a full bath are situated in a thoughtful split-bedroom layout on the opposite side of the home, offering comfort and privacy for family or guests.
Outdoor living shines with an expansive wrap-around porch boasting over 1,400 sq. ft., perfect for relaxing, entertaining, and enjoying the surrounding views.
The rear porch features a dedicated outdoor kitchen, creating an ideal setting for al fresco dining and warm-weather gatherings.
Blending rustic charm with contemporary convenience, this barndominium offers inspired living at its finest.
=> Looking for a custom Barndominium floor plan? Click here to fill out our form, a member of our team will be in touch.
