Specifications
- Area: 3,188 sq. ft.
- Bedrooms: 4
- Bathrooms: 3
- Stories: 2
- Garages: 1
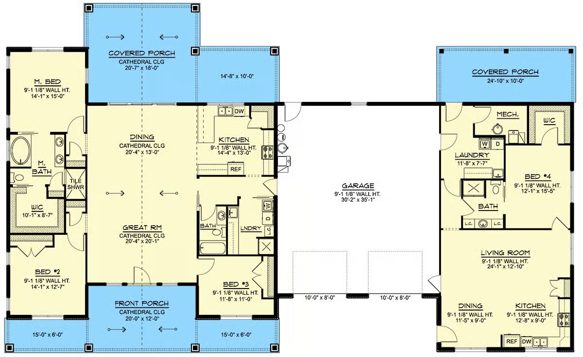
Welcome to the gallery of photos for the Modern Barndominium with Expansive Porches and Workshop. The floor plan is shown below:

Buy This Plan






Experience 3,188 sq. ft. of modern country living in this stunning Barndominium-style home, featuring 4 bedrooms, 3 bathrooms, and an attached 2-car garage spanning 1,084 sq. ft.
Designed with a sleek modern ranch aesthetic, this home perfectly balances rustic charm and contemporary comfort.
Step inside to a grand open-concept layout, where the cathedral-ceiling great room flows seamlessly into the spacious dining area and gourmet kitchen.
The kitchen offers generous prep space, abundant storage, and easy access to the dining room and adjacent mudroom, ensuring effortless daily living and entertaining.
The first-floor master suite serves as a private retreat, complete with a luxurious ensuite bath and expansive walk-in closet. Additional bedrooms are thoughtfully positioned to provide comfort and privacy for family or guests.
An attached 1-bedroom, 1-bath apartment with its own covered rear porch adds flexibility—ideal for guests, extended family, or potential rental income.
A dedicated workshop offers space for creative projects, hobbies, or extra storage, enhancing the home’s functionality.
Enjoy the outdoors year-round with 1,183 sq. ft. of combined porch space, perfect for relaxing, entertaining, or taking in serene mountain views.
This Barndominium-style gem blends modern luxury, rustic warmth, and versatile living, making it the perfect home for today’s lifestyle.
=> Looking for a custom Barndominium floor plan? Click here to fill out our form, a member of our team will be in touch.
