Specifications
- Area: 4,054 sq. ft.
- Bedrooms: 4
- Bathrooms: 4.5
- Stories: 2
- Garages: 2
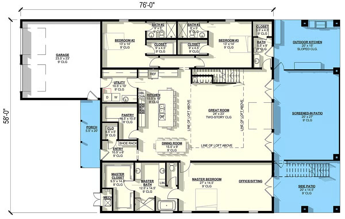
Welcome to the gallery of photos for the Modern Barndominium House with Loft and Outdoor Kitchen. The floor plans are shown below:








Experience refined modern living in this expansive 4,054 sq. ft. barndominium, offering 4 bedrooms, 4.5 bathrooms, and an attached 576 sq. ft. two-car garage.
Thoughtfully designed for both comfort and functionality, this home combines contemporary style with striking architectural elements.
Step inside to a welcoming mudroom and a generous walk-in pantry, leading into the homeās breathtaking centerpieceāan open-concept great room showcasing a dramatic two-story ceiling.
The gourmet kitchen, complete with a charming breakfast nook, flows effortlessly into the dining area and great room, creating an ideal space for everyday living and effortless entertaining. A dedicated library/study provides a peaceful retreat for work or quiet reading.
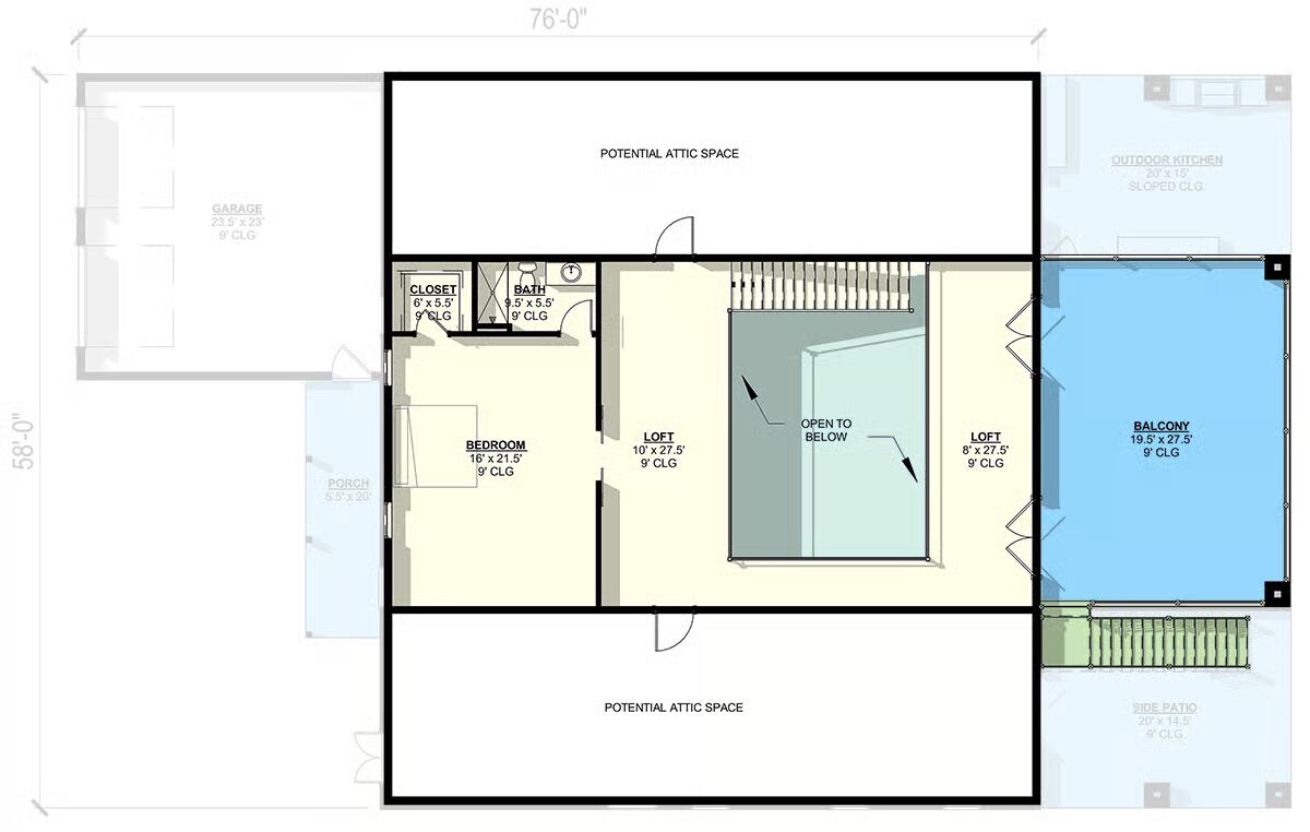
The luxurious first-floor master suite offers a true private oasis, highlighted by a spacious spa-inspired bath and a large walk-in closet. Two additional main-level bedrooms are strategically positioned for enhanced privacy, while a fourth bedroom is located on the upper floor.
Upstairs, a versatile loft overlooking the great room offers the perfect setting for a lounge, media space, or play area. Additional attic space provides valuable storage or future expansion potential.
Outdoor living shines with multiple inviting spaces, including a covered front porch, an expansive covered patio, a screened-in patio, and a side patio, all anchored by a fully equipped outdoor kitchen perfect for alfresco dining.
The second-floor balcony adds even more space to unwind while enjoying elevated views.
A stunning blend of modern sophistication and barndominium charm, this home is designed for those seeking luxury, flexibility, and exceptional indoor-outdoor living.
=> Looking for a custom Barndominium floor plan? Click here to fill out our form, a member of our team will be in touch.
