Specifications
- Area: 2,589 sq. ft.
- Bedrooms: 4
- Bathrooms: 3
- Stories: 2
- Garages: 3
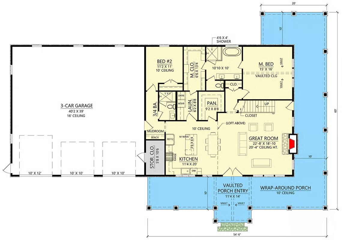
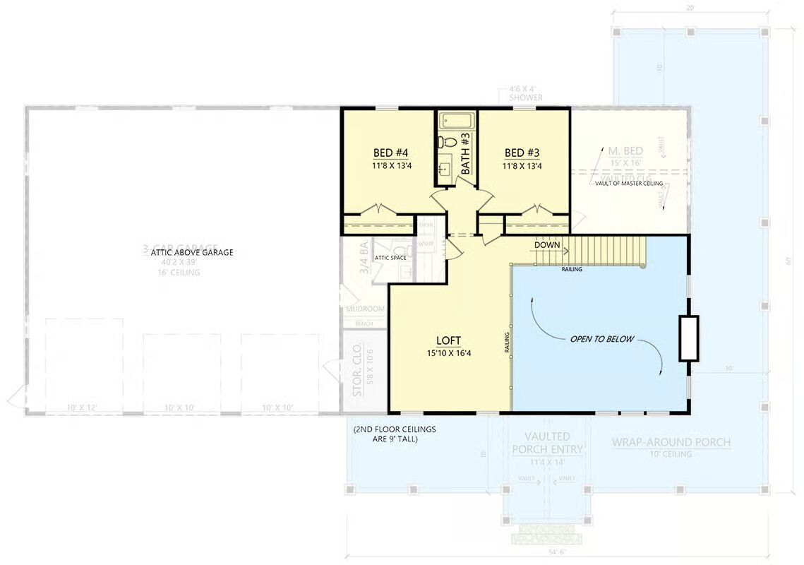
Welcome to the gallery of photos for the Grand Barndominium House with RV Garage and Wrap-Around Porch. The floor plans are shown below:







Experience modern farmhouse living at its finest in this expansive 2,589 sq. ft. Barndominium-style home, offering 4 bedrooms, 3 full bathrooms, and an impressive 1,627 sq. ft. three-car garage complete with an RV bay.
Wrapped in striking dark siding accented by stone and timber detailing, this home delivers both presence and charm.
A vaulted wrap-around porch sets a welcoming tone as you approach the entrance. Inside, a convenient mudroom and main-level laundry provide a smooth transition from the garage, enhancing everyday practicality.
The open-concept layout showcases a chef-inspired kitchen with a generous island and a discreet butler’s walk-in pantry, seamlessly flowing into the dramatic two-story great room—an ideal setting for entertaining, family gatherings, or cozy evenings by the fireplace.
The first-floor master suite offers a luxurious retreat featuring a vaulted ceiling, a spacious walk-in closet with direct access to the laundry room, and an elegant spa-like en-suite bath.
A second main-level bedroom with its own full bath adds valuable flexibility for guests or multi-generational living.
Upstairs, two additional bedrooms share a well-appointed full bathroom and complement an airy loft that overlooks the great room below. This loft presents a versatile opportunity—perfect for a home office, study area, or creative space.
Outdoor living takes center stage with a generous 1,190 sq. ft. wrap-around porch, offering multiple areas for relaxing, dining, or enjoying scenic views from every angle.
With its thoughtful layout, luxurious features, and inviting farmhouse charm, this barndominium plan delivers exceptional comfort and style both inside and out.
=> Looking for a custom Barndominium floor plan? Click here to fill out our form, a member of our team will be in touch.
