Specifications
- Area: 4,075 sq. ft.
- Bedrooms: 4
- Bathrooms: 3.5+
- Stories: 2
- Garages: 4
Welcome to the gallery of photos for the Barndominium-Style House with Outdoor Fireplace and Kitchen – 4075 Sq Ft. The floor plans are shown below:


Buy This Plan



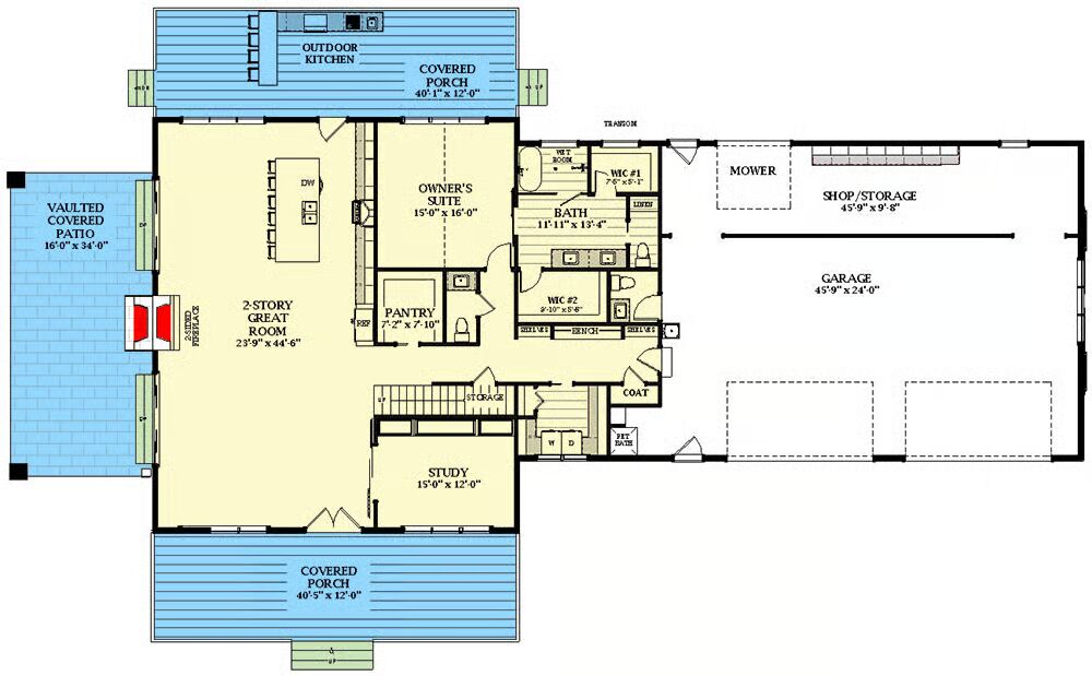
This stunning Barndominium-style home combines rustic character with modern luxury, offering 4 bedrooms, 3.5 bathrooms, and an impressive 4,075 square feet of heated living space.
Designed for both functionality and comfort, it also includes a 1,146 sq. ft. 4-car garage with a workshop and 974 sq. ft. of covered outdoor living areas, featuring a porch with fireplace and another with a fully equipped outdoor kitchen—perfect for entertaining year-round.
Step through the 12-foot-deep front porch into a grand two-story great room, highlighted by a soaring ceiling and cozy fireplace. Just off the entry, sliding doors open to a private study, ideal for a home office or library.
The main-level master suite offers a luxurious retreat with a vaulted ceiling, dual walk-in closets, and a spa-inspired ensuite complete with a wet room and dual vanities.
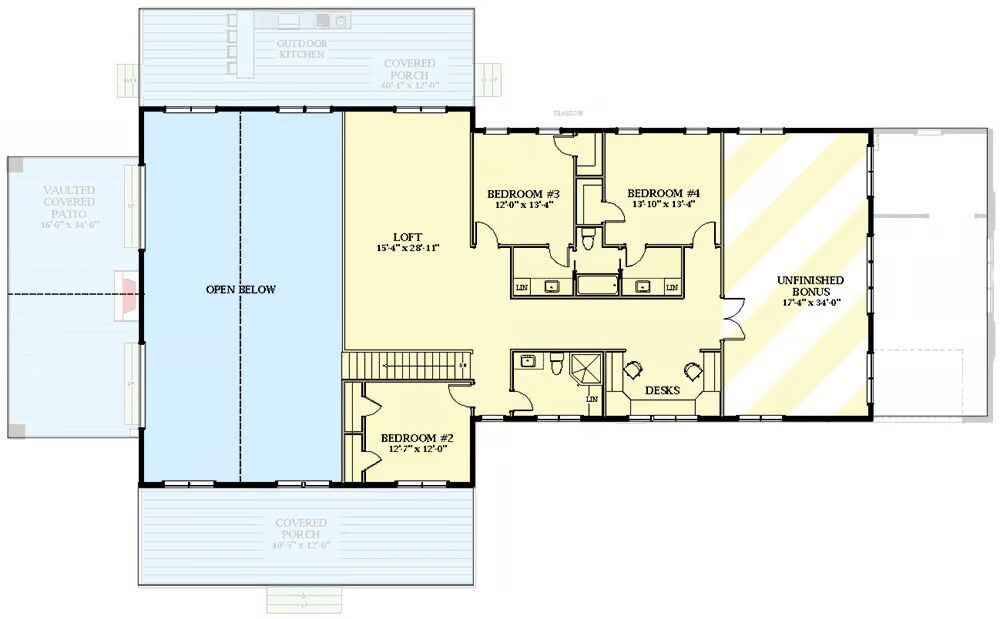
Upstairs, Bedrooms 3 and 4 share a stylish Jack-and-Jill bath, while Bedroom 2 enjoys a private hall bath. A loft overlooking the great room adds an open, airy feel, complemented by built-in desks—perfect for study or creative projects.
A bonus room provides an additional 631 square feet of flexible space when finished.
The expansive garage includes a dedicated shop area and a convenient rear access door for smaller equipment.
Blending barndominium charm with modern sophistication, this home delivers the ideal balance of comfort, craftsmanship, and versatility—perfect for families who love to live, work, and entertain in style.
=> Looking for a custom Barndominium floor plan? Click here to fill out our form, a member of our team will be in touch.
