Specifications
- Area: 4,203 sq. ft.
- Bedrooms: 4
- Bathrooms: 3.5
- Stories: 2
- Garages: 3
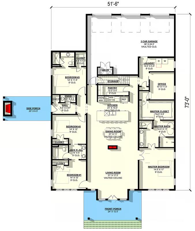
Welcome to the gallery of photos for the Barndominium-Style House with Loft and 3-Car Garage. The floor plans are shown below:


Buy This Plan


This impressive 4,203-square-foot residence blends modern comfort with barndominium-inspired charm, offering 4 bedrooms, 3.5 baths, and an 823-square-foot, 3-car garage, all wrapped in a striking exterior with wide, welcoming porches.
Step inside to a dramatic vaulted great room, where the open-concept kitchen, dining, and living areas create an expansive, airy gathering space. The gourmet kitchen features a large center island, walk-in pantry, and built-in appliances, making it both stylish and highly functional.
Privately positioned on the right side of the home, the primary suite serves as a restful retreat, complete with a spacious bedroom, a spa-inspired ensuite offering dual vanities, a separate tub and shower, and an oversized walk-in closet.
The left wing is ideal for family or guests, offering three secondary bedrooms. Two share a convenient Jack and Jill bath, while the third enjoys its own private bathroom.
A dedicated home office near the garage entry provides a quiet and efficient workspace for remote work or household management.
Outdoor living is equally inviting, thanks to a covered side porch designed for relaxation or entertaining.
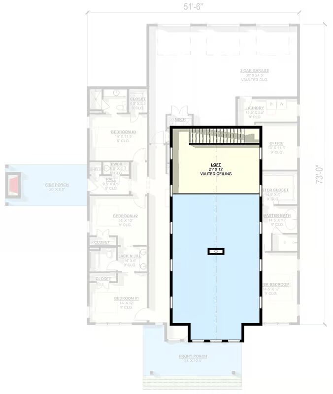
Upstairs, a generous vaulted loft (21′ x 12′) overlooks the living area below and offers endless versatility—perfect as a media room, playroom, hobby space, or even a guest retreat.
This home combines thoughtful design, expansive living spaces, and timeless barndominium character, creating the ideal setting for modern living.
=> Looking for a custom Barndominium floor plan? Click here to fill out our form, a member of our team will be in touch.
