Specifications
- Area: 4,747 sq. ft.
- Bedrooms: 4
- Bathrooms: 3.5
- Stories: 2
- Garages: 3
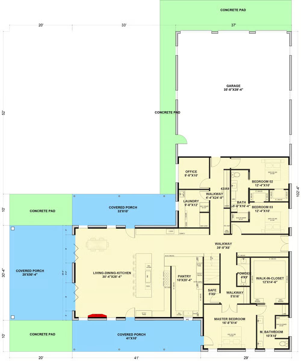
Welcome to the gallery of photos for the Barndominium House with Two-Story Great Room – 4747 Sq Ft. The floor plans are shown below:












Experience the perfect blend of luxury, rustic charm, and modern design in this stunning lodge-style barndominium, offering 4,747 sq. ft. of living space across two stories.
With a 1,480 sq. ft. 3-bay shop/garage and 1,346 sq. ft. of covered porches, this home is designed for comfort, functionality, and entertaining on every level.
Step inside to a spacious entryway that opens into a massive open-concept living, kitchen, and dining area—the true heart of the home.
The gourmet kitchen is equipped with an oversized island, dual sinks, dual dishwashers, and a walk-in pantry complete with its own refrigerator, freezer, and prep space.
The main-level primary suite is a private retreat with exterior access, a spa-inspired bath with a double vanity, oversized walk-in shower with bench seating, and a generous walk-in closet.
Two additional bedrooms with walk-in closets share a Jack-and-Jill bath, while a large office, safe room, and well-equipped laundry/mudroom with sink, dog shower, and ample cabinetry complete the first floor.
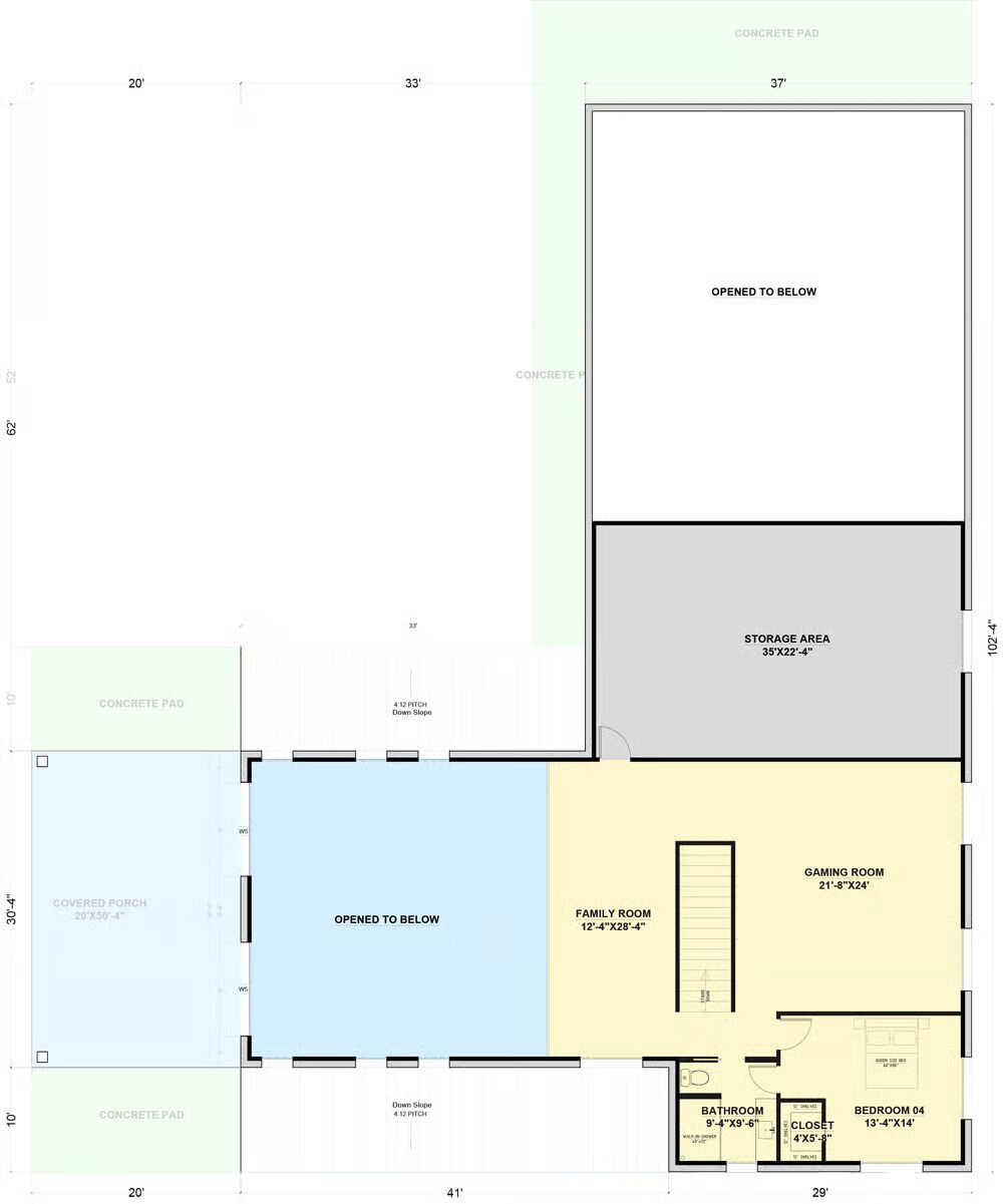
Upstairs, a fourth bedroom with en suite bath provides comfort for family or guests. The second floor also features a spacious family/game room and a massive attic/storage area, offering versatile space for recreation and organization.
Outdoor living shines with wide covered porches, perfect for relaxing or entertaining in every season.
This home is more than a residence—it’s a statement, combining lodge-inspired architecture with modern amenities to deliver the ultimate retreat for large families or avid entertainers.
=> Looking for a custom Barndominium floor plan? Click here to fill out our form, a member of our team will be in touch.
