Specifications
- Area: 2,400 sq. ft.
- Bedrooms: 0
- Bathrooms: 0
- Stories: 1
- Garages: 3
Welcome to the gallery of photos for the 3-Car Oversized Barndominium Garage – 2400 Sq Ft. The floor plans are shown below:


Buy This Plan

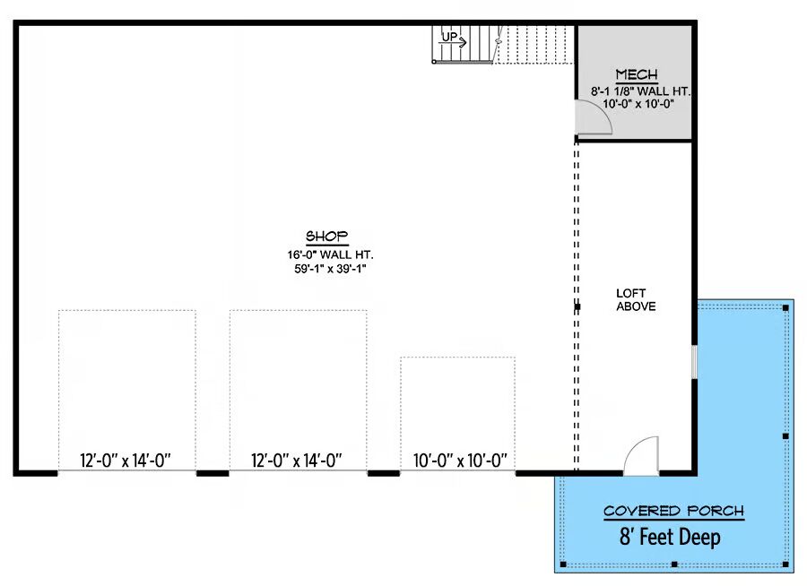
This impressive 2,400 sq. ft. Country Barndominium-style structure combines the practicality of a 3-car detached garage and workshop with timeless rural charm.
Step through the covered porch entry into a vast workshop area boasting a soaring 16-foot ceiling, ideal for large-scale projects, equipment, or hobby work.
The main level is centered around a spacious shop, easily accessible through three front-facing garage bays—two measuring 12′ x 14′ and one 10′ x 10’—providing ample room for vehicles, tools, and machinery.
A dedicated mechanical room ensures convenient access to utilities and systems.
Above a section of the workshop, a functional loft adds flexible space for storage, an office, or a secondary workspace, accessible via an interior staircase that overlooks the shop floor below.
Completing the design, a 280 sq. ft. covered side porch offers a relaxing outdoor retreat—perfect for unwinding after a productive day or enjoying your morning coffee while taking in the view.
Blending functionality with rustic sophistication, this Barndominium-style garage and workshop is ideal for craftsmen, hobbyists, or anyone seeking a versatile and stylish outbuilding.
=> Looking for a custom Barndominium floor plan? Click here to fill out our form, a member of our team will be in touch.
