Specifications
- Area: 2,084 sq. ft.
- Bedrooms: 3
- Bathrooms: 2.5
- Stories: 2
- Garages: 2
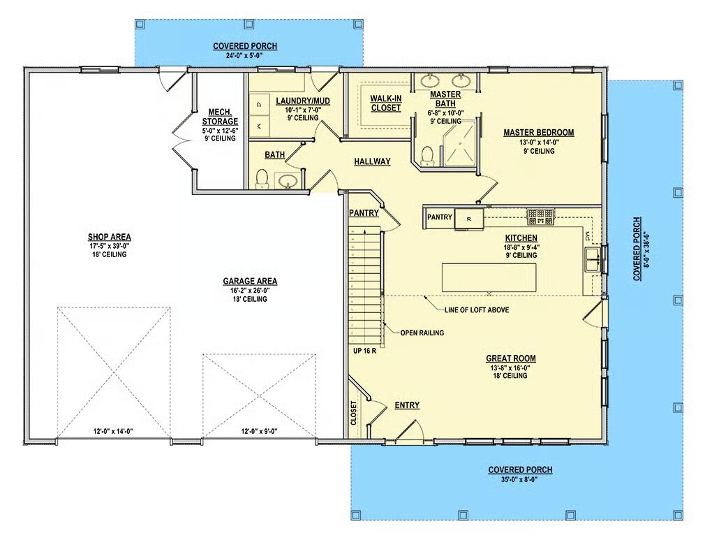
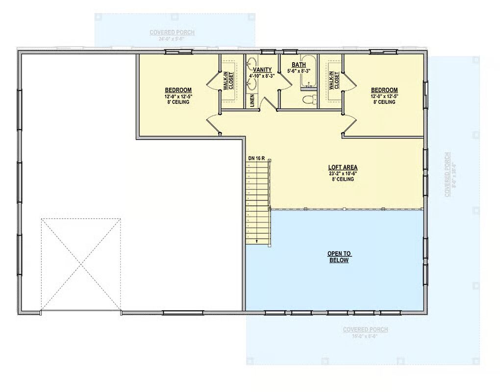
Welcome to the gallery of photos for the Barndominium-Style Home with RV Garage and Two-Story Great Room – 2084 Sq Ft. The floor plans are shown below:










This one-and-a-half-story Barndominium-style home blends rustic charm with modern functionality, offering 2,084 square feet of heated living space, 3 bedrooms, and 2.5 bathrooms.
Designed with conventional 2×6 wood framing, this home delivers lasting quality and efficiency.
A standout feature is the oversized 2-bay workshop garage, providing 1,217 square feet of versatile spaceāideal for an RV, mechanics lift, or hobby area. It boasts 18-foot ceilings, a 12′ x 14′ bay door, and a 39-foot-deep workspace with a convenient storage closet.
An additional single-car bay with a 12′ x 9′ overhead door adds even more flexibility.
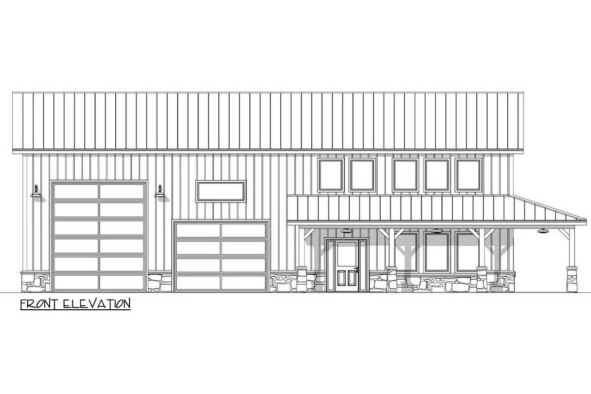
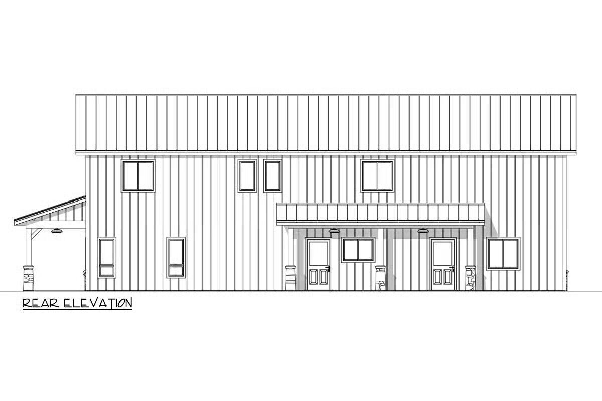
The homeās exterior showcases a beautiful mix of materials, including board and batten siding, stone faƧade skirting, and a durable metal roof. A wraparound front porch completes the inviting curb appeal, offering the perfect spot to enjoy peaceful mornings or sunset views.
Combining timeless farmhouse aesthetics with modern practicality, this barndominium-style home is designed for those who appreciate both comfort and craftsmanship.
=> Looking for a custom Barndominium floor plan? Click here to fill out our form, a member of our team will be in touch.
