Specifications
- Area: 1,906 sq. ft.
- Bedrooms: 3
- Bathrooms: 2.5
- Stories: 2
- Garages: 2
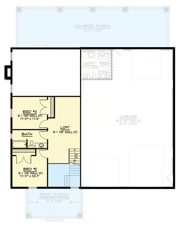
Welcome to the gallery of photos for the Spacious 3-Bedroom Barndominium with RV Garage and Loft. The floor plans are shown below:






Experience 1,906 sq. ft. of thoughtfully designed living space in this barndominium plan, blending Craftsman charm with modern farmhouse appeal. Featuring 3 bedrooms, 2.5 bathrooms, and a 1,421 sq. ft. 3-car garage, this home balances style with functionality.
Step inside to a soaring two-story living room that seamlessly connects to the dining area—an open-concept layout ideal for both entertaining and everyday living.
The kitchen serves as the heart of the home, complete with a central island and a butler’s pantry, offering convenience for culinary enthusiasts and hosts alike.
The main-level master suite provides a private retreat with a luxurious bathroom and walk-in closet, while two secondary bedrooms upstairs ensure comfort and privacy. A cozy loft area overlooks the living room, perfect as a home office, media room, or flex space.
Outdoor living is equally inviting, with a spacious covered back porch designed for relaxation or entertaining against a scenic backdrop. A main-level laundry room and split-bedroom design add ease and efficiency to the home’s layout.
=> Looking for a custom Barndominium floor plan? Click here to fill out our form, a member of our team will be in touch.
