Specifications
- Area: 2,291 sq. ft.
- Bedrooms: 3
- Bathrooms: 3.5
- Stories: 1
- Garages: 3
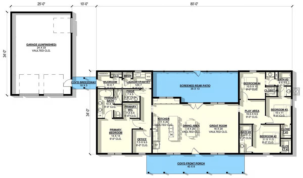
Welcome to the gallery of photos for the Sleek Modern Barndominium House with Open Concept Living. The floor plan is shown below:










Experience modern country living at its finest with this striking 2,291 sq. ft. Barndominium, offering 3 bedrooms, 3 full bathrooms, 1 half bath, and an impressive 850 sq. ft. detached 3-car garage. A sleek contemporary exterior sets the tone for the refined spaces within.
Step inside from the charming 320 sq. ft. covered front porch to an expansive open-concept living area, where the kitchen, dining room, and great room flow effortlessly beneath dramatic vaulted ceilings.
The chef-inspired kitchen features a generous island and seamlessly connects to the sun-filled dining area and spacious great room, creating a perfect environment for entertaining or everyday comfort.
A dedicated home office is thoughtfully positioned near the primary suite, offering a private workspace ideal for remote work or quiet study.
The luxurious primary suite occupies one end of the home, featuring a private ensuite bath and a large walk-in closet.
Across the home, two additional bedrooms share a beautifully designed Jack & Jill bathroom, complemented by a versatile play area perfect for a media room, game space, or children’s retreat.
Outdoor living is equally inviting, with a 429 sq. ft. screened rear patio ideal for al fresco dining and year-round enjoyment, all while maintaining comfort and protection from the elements.
This distinctive Barndominium blends thoughtful design, modern amenities, and flexible living spaces—perfect for families, entertainers, and those seeking contemporary rustic charm.
=> Looking for a custom Barndominium floor plan? Click here to fill out our form, a member of our team will be in touch.
