Specifications
- Area: 3,079 sq. ft.
- Bedrooms: 3
- Bathrooms: 2.5
- Stories: 2
- Garages: 2
Welcome to the gallery of photos for the RV-Friendly Barndo-Style House Under 3100 Square Feet. The floor plans are shown below:


Buy This Plan






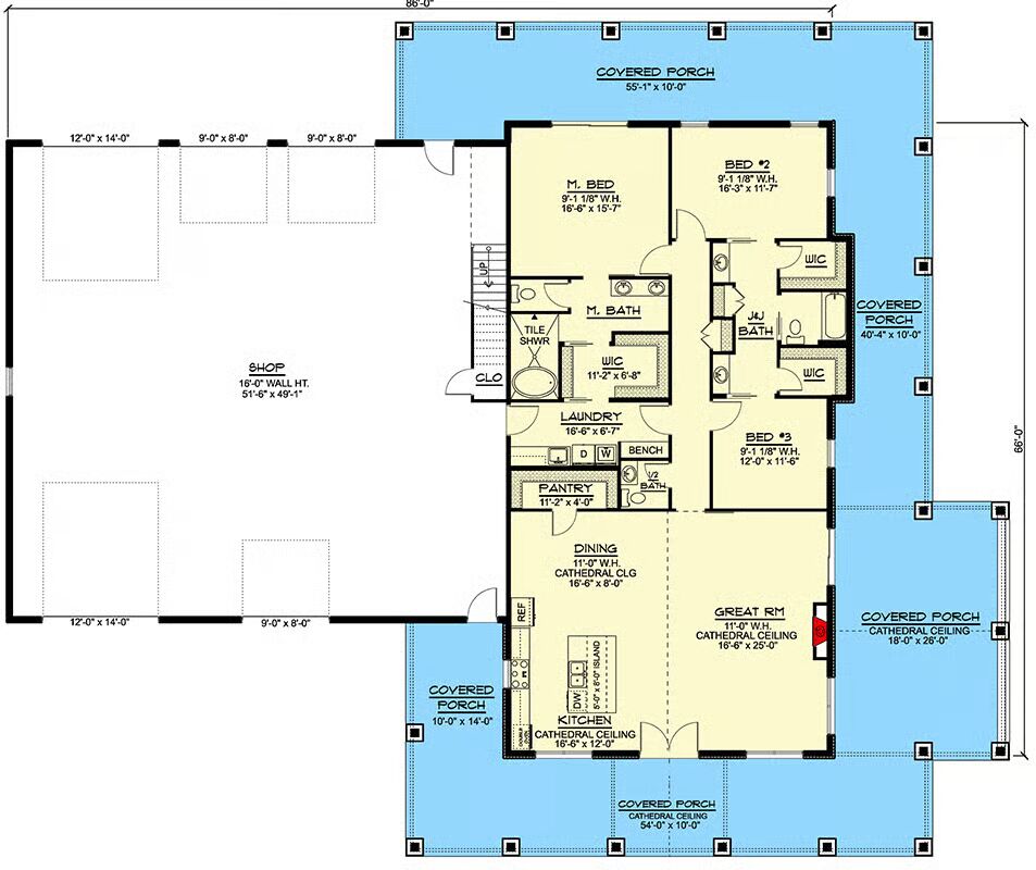
This farmhouse-inspired barndominium combines rustic charm with modern practicality, offering both expansive living space and a versatile workshop.
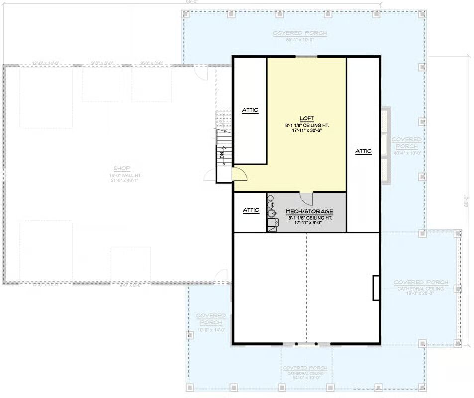
The right half of the home showcases a massive 2,600-square-foot garage and workshop, complete with an RV-friendly bay featuring front and rear overhead doors.
A staircase inside leads to a second-level loft, perfect for use as an office, storage area, or mechanical space. Built with conventional 2×6 wood framing, this design ensures durability and efficiency.
Step onto the inviting 10-foot-deep wraparound porch, where French doors open into a soaring cathedral-ceiling great room. The open-concept layout blends a cozy living space with a fireplace, a dining area, and a gourmet kitchen anchored by a generous 5′ x 8′ island.
Two secondary bedrooms share a convenient Jack-and-Jill bath and each include walk-in closets. The private master suite is thoughtfully positioned at the rear, featuring a 4-fixture bath with a linen closet and a spacious walk-in closet with direct laundry access.
Finished in corrugated metal siding, this home offers the perfect balance of farmhouse character and barndominium style.
=> Looking for a custom Barndominium floor plan? Click here to fill out our form, a member of our team will be in touch.
