Specifications
- Area: 1,841 sq. ft.
- Bedrooms: 3
- Bathrooms: 2
- Stories: 1
- Garages: 3
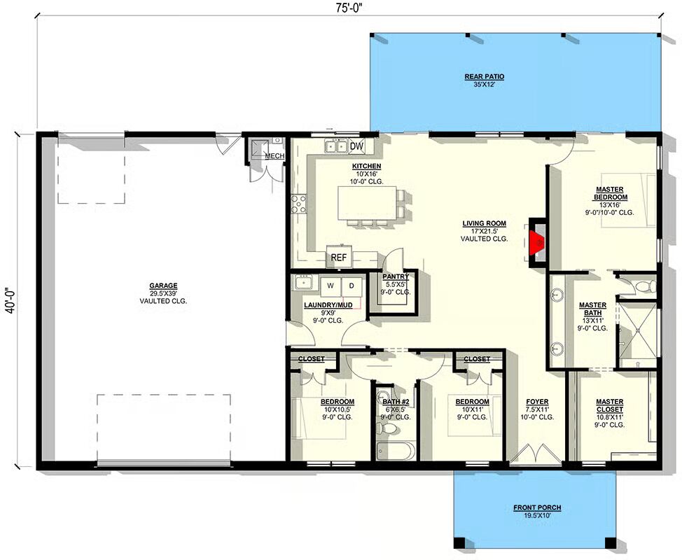
Welcome to the gallery of photos for the Modern Barndominium House with Vaulted Living and 3-Car Garage. The floor plan is shown below:







Discover modern farmhouse charm blended with practical design in this 1,841 sq. ft. Barndominium, offering 3 bedrooms, 2 full bathrooms, and an expansive 1,197 sq. ft. attached 3-car garage.
Clean lines, stylish finishes, and a welcoming exterior set the tone for the inviting spaces inside.
A 195 sq. ft. covered front porch leads you into a spacious foyer with soaring 10-foot ceilings, opening directly into the home’s vaulted living room—an impressive centerpiece for this open-concept layout.
The bright and airy living room effortlessly flows into the gourmet kitchen, complete with generous counter space, a large dining area, and a convenient butler’s walk-in pantry, ideal for organization and meal preparation.
The private master suite, thoughtfully positioned on its own side of the home, serves as a serene retreat with ample space and a well-appointed ensuite bath.
On the opposite side, two comfortable secondary bedrooms share easy access to a full bathroom, ensuring privacy and comfort for family or guests.
Everyday functionality is seamlessly integrated through a mudroom and main-level laundry area, offering a tidy transition from the oversized garage and helping keep clutter in check.
Outdoor living is equally appealing, whether enjoying peaceful mornings on the front porch or hosting gatherings on the expansive 420 sq. ft. covered rear patio, perfectly suited for dining, relaxation, and year-round enjoyment.
Stylish, efficient, and thoughtfully designed, this Barndominium delivers the best of modern farmhouse living.
=> Looking for a custom Barndominium floor plan? Click here to fill out our form, a member of our team will be in touch.
