Specifications
- Area: 2,368 sq. ft.
- Bedrooms: 3
- Bathrooms: 3
- Stories: 2
- Garages: 3
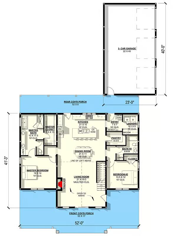
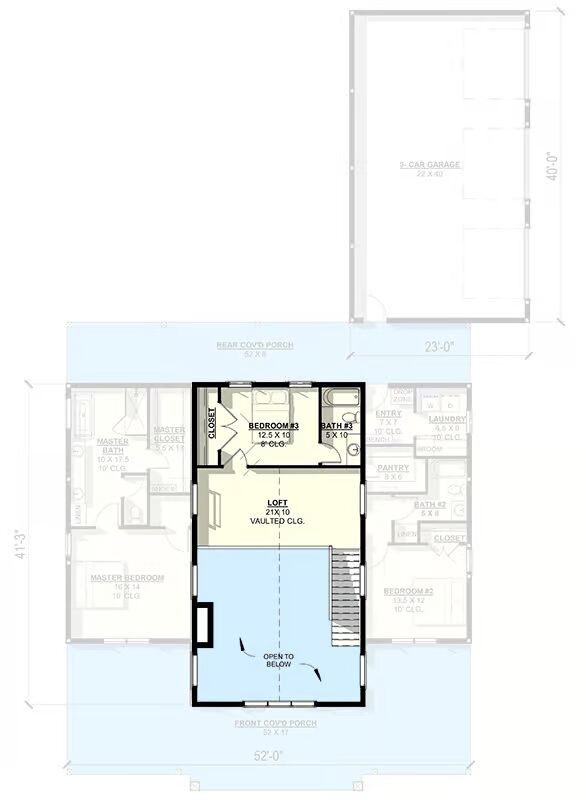
Welcome to the gallery of photos for the Farmhouse Barndominium House with Loft and 3-Car Garage. The floor plans are shown below:








Discover modern country living in this stunning 2,368 sq. ft. Barndominium Farmhouse, offering 3 bedrooms, 3 full bathrooms, and a detached 3-car garage with 920 sq. ft. of workspace.
A spacious 753 sq. ft. front covered porch welcomes you inside, where an impressive two-story great room with soaring vaulted ceilings sets the tone for the open-concept layout.
The main level provides everyday convenience with a dedicated mudroom and laundry room located near the side entry.
At the heart of the home, the living room flows seamlessly into the dining area and a beautifully designed kitchen featuring a large center island and a butler’s walk-in pantry—ideal for cooking, entertaining, and storage.
Sliding doors off the dining room lead to the 416 sq. ft. rear covered porch, creating the perfect setting for outdoor dining and relaxation.
The main level also hosts a luxurious master suite, thoughtfully separated from the second bedroom to ensure privacy. The master bath offers a serene retreat with both a soaking tub and a separate shower.
Upstairs, a private third bedroom with its own full bath complements a versatile loft overlooking the great room—an ideal space for a home office, reading nook, or creative studio.
Outdoor living is a highlight, with expansive front and rear covered porches designed for welcoming guests, enjoying quiet mornings, or hosting intimate gatherings.
This barndominium farmhouse blends rustic charm with modern functionality—an ideal choice for those seeking space, comfort, and timeless design.
=> Looking for a custom Barndominium floor plan? Click here to fill out our form, a member of our team will be in touch.
