Specifications
- Area: 3,340 sq. ft.
- Bedrooms: 3
- Bathrooms: 2.5
- Stories: 2
- Garages: 2
Welcome to the gallery of photos for the Craftsman Style Barndominium House with PEMB Metal Framing – 3340 Sq Ft. The floor plans are shown below:







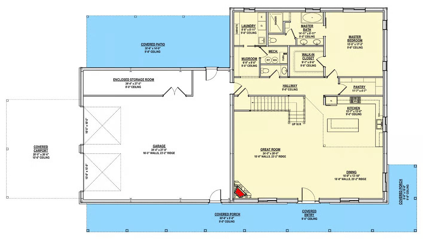
This barndominium-style Craftsman home offers 3 bedrooms, 2.5 bathrooms, and 3,340 square feet of thoughtfully designed living space.
Expansive porches in both the front (788 sq. ft.) and back (539 sq. ft.) provide over 1,300 square feet of outdoor living, perfect for relaxing or entertaining in the fresh air.
An oversized 2-bay side-entry garage delivers 1,440 square feet of parking and workspace, complemented by a covered carport in front of the bay doors for added convenience.
Designed with Pre-Engineered Metal Building (PEMB) construction in mind, this home combines durability with efficiency. PEMBs are the most widely used structures for barndominiums, offering faster installation than traditional framing.
With roof loads carried by the steel structure, interior build-outs are flexible and convenient, allowing you to tailor the space to your lifestyle.
=> Looking for a custom Barndominium floor plan? Click here to fill out our form, a member of our team will be in touch.
