Specifications
- Area: 1,982 sq. ft.
- Bedrooms: 3
- Bathrooms: 2.5
- Stories: 1
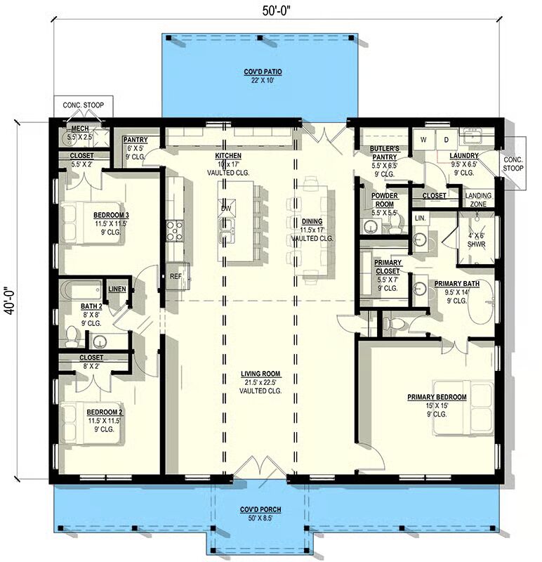
Welcome to the gallery of photos for the Charming Barndominium House with Vaulted Living and Split Bedrooms. The floor plan is shown below:






Experience modern farmhouse charm blended with rustic elegance in this 1,982 sq. ft. Barndominium, offering 3 inviting bedrooms and 2.5 beautifully appointed bathrooms.
Thoughtfully designed for both comfort and style, this home welcomes you with an impressive open-concept layout enhanced by soaring vaulted ceilings.
At the heart of the home, a spacious living room flows effortlessly into the gourmet kitchen, where a substantial center island provides the perfect hub for casual dining and meal prep.
An expansive butler’s walk-in pantry adds exceptional storage and organization, elevating everyday convenience.
The desirable split-bedroom layout ensures privacy, positioning the luxurious primary suite on one side of the home.
This serene retreat features a generously sized bedroom, a spa-inspired ensuite bath with a large walk-in shower, and an oversized walk-in closet.
Two secondary bedrooms and a shared full bath are located on the opposite side of the home, offering comfort and space for family or guests.
A dedicated mudroom, main-level laundry room, and guest powder room are strategically positioned near the entry from the rear covered patio, blending practicality with thoughtful design.
Outdoor living is equally inviting, with a 330 sq. ft. covered front porch ideal for quiet mornings and a 220 sq. ft. covered rear patio perfect for evening gatherings, creating seamless opportunities to enjoy the surrounding landscape year-round.
=> Looking for a custom Barndominium floor plan? Click here to fill out our form, a member of our team will be in touch.
