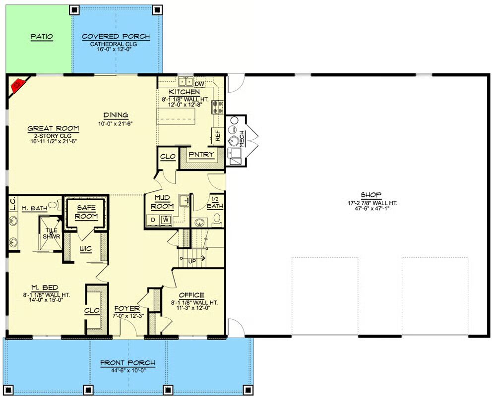
Specifications
- Area: 3,172 sq. ft.
- Bedrooms: 3
- Bathrooms: 2.5
- Stories: 2
- Garages: 2
Welcome to the gallery of photos for the Barndominium with Front and Rear Porches and Main-floor Master. The floor plans are shown below:










Experience the best of modern rural living with this thoughtfully designed 3-bedroom barndominium, complete with a massive 2,304 sq. ft. garage and workshop.
Perfect for hobbyists, car enthusiasts, or anyone needing generous storage and workspace, this home blends practicality with farmhouse-inspired charm.
A welcoming 10’-deep front porch leads into the foyer, where a convenient coat closet and a front-facing home office set the tone for both comfort and functionality.
The open-concept main level features a square-shaped kitchen overlooking the great room and dining area, anchored by a cozy corner fireplace. Sliding doors extend the living space onto a partially covered rear patio, perfect for outdoor gatherings.
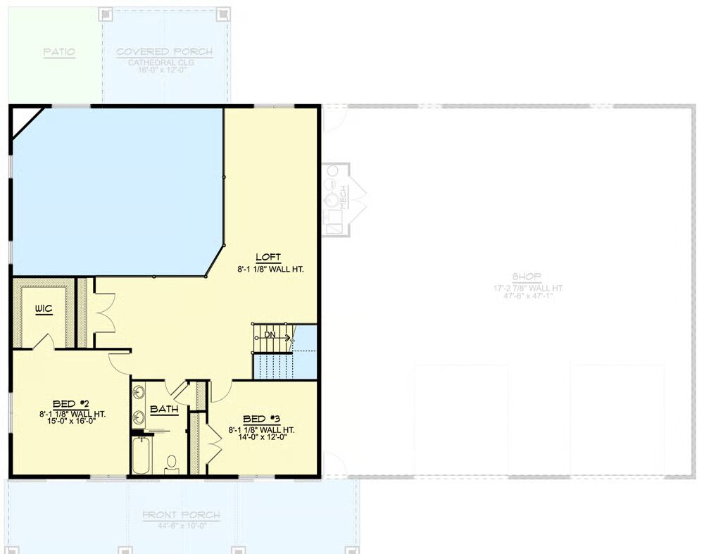
Upstairs, a spacious loft overlooks the great room below, while two bedrooms share a thoughtfully designed compartmentalized bathroom for added convenience.
The main-level primary suite offers privacy and ease of access, while the mudroom—with built-in coat storage and a powder bath—provides a seamless transition from the garage into the home.
Finished with durable corrugated metal siding, this barndominium delivers lasting style, functionality, and comfort in a timeless rural setting.
=> Looking for a custom Barndominium floor plan? Click here to fill out our form, a member of our team will be in touch.
