Specifications
- Area: 2,100 sq. ft.
- Bedrooms: 3
- Bathrooms: 2.5
- Stories: 2
- Garages: 4
Welcome to the gallery of photos for the Barndominium with 4-Car Garage / Shop. The floor plans are shown below:








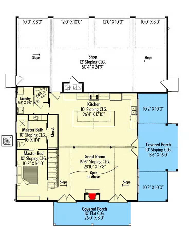
Blending timeless charm with modern convenience, this barndominium-style home features a metal gabled roofline, shed dormer, and board-and-batten siding, evoking the look of a classic country barn.
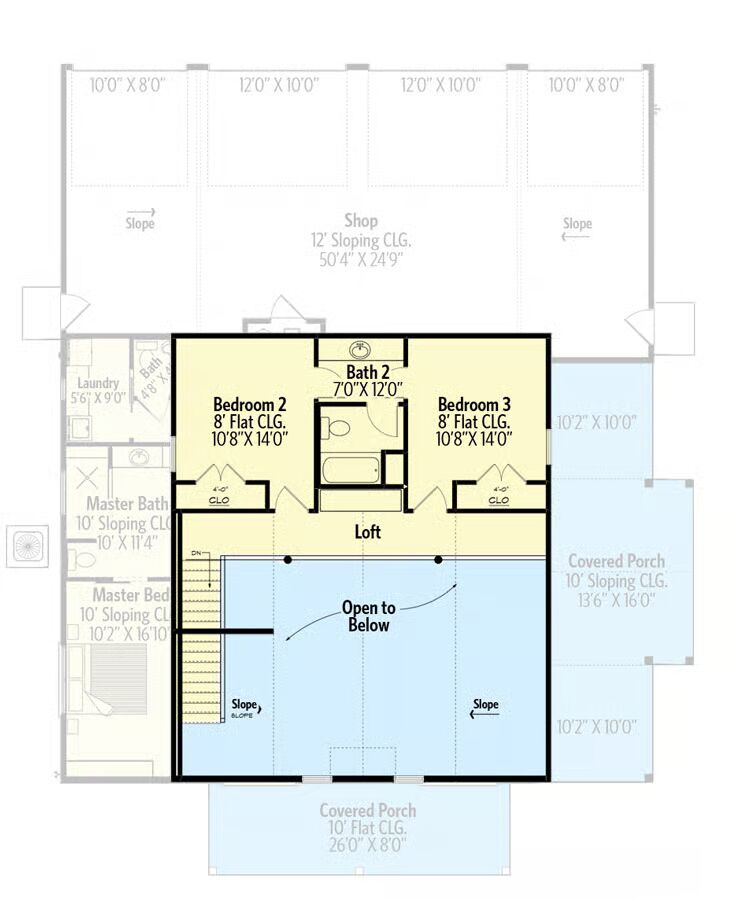
Offering 3 bedrooms and a 4-car garage/workshop, this plan is designed for both comfort and functionality.
Inside, a two-story great room with a cozy fireplace is flanked by French doors, filling the space with light and warmth. The open-concept kitchen provides abundant counter space, perfect for cooking and entertaining.
The main-level master suite is designed for ease and comfort, complete with a barrier-free shower for age-in-place living. Upstairs, two additional bedrooms share a Jack-and-Jill bath, offering convenience for family or guests.
The attached rear garage/workshop includes four overhead doors, ideal for vehicles, storage, or projects. From here, step directly into the home where a barn door reveals a powder bath and laundry room, blending rustic style with everyday practicality.
=> Looking for a custom Barndominium floor plan? Click here to fill out our form, a member of our team will be in touch.
