Specifications
- Area: 2,456 sq. ft.
- Bedrooms: 3
- Bathrooms: 2.5
- Stories: 1
- Garages: 4
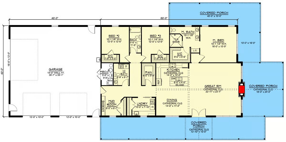
Welcome to the gallery of photos for the Barndominium-Style House with 1600 Sq Ft Garage – 2456 Sq Ft. The floor plan is shown below:







Buy This Plan
This Barndominium-style home offers the perfect blend of rustic charm and modern function, featuring 2,456 sq. ft. of heated living space with 3 bedrooms and 2.5 baths, plus a massive 1,600 sq. ft. garage.
The garage includes two 12′ x 10′ overhead doors in front and an oversized 18′ x 12′ side door, providing ample space for vehicles, equipment, or recreational storage.
Designed for seamless indoor-outdoor living, the home boasts 1,673 sq. ft. of covered porches on three sides, including a cathedral-style side porch with a fireplace—perfect for year-round entertaining.
Inside, the open-concept layout highlights a cathedral-ceiling great room that flows into the dining area and kitchen, creating a spacious and inviting heart of the home.
All bedrooms are located along the rear of the home, including a private master suite. A functional mudroom with pocket-door laundry access adds everyday convenience.
Finished with corrugated metal siding, this Barndominium combines durability, character, and comfort in one beautiful design.
=> Looking for a custom Barndominium floor plan? Click here to fill out our form, a member of our team will be in touch.
