Specifications
- Area: 1,635 sq. ft.
- Bedrooms: 3
- Bathrooms: 2
- Stories: 1
- Garages: 2
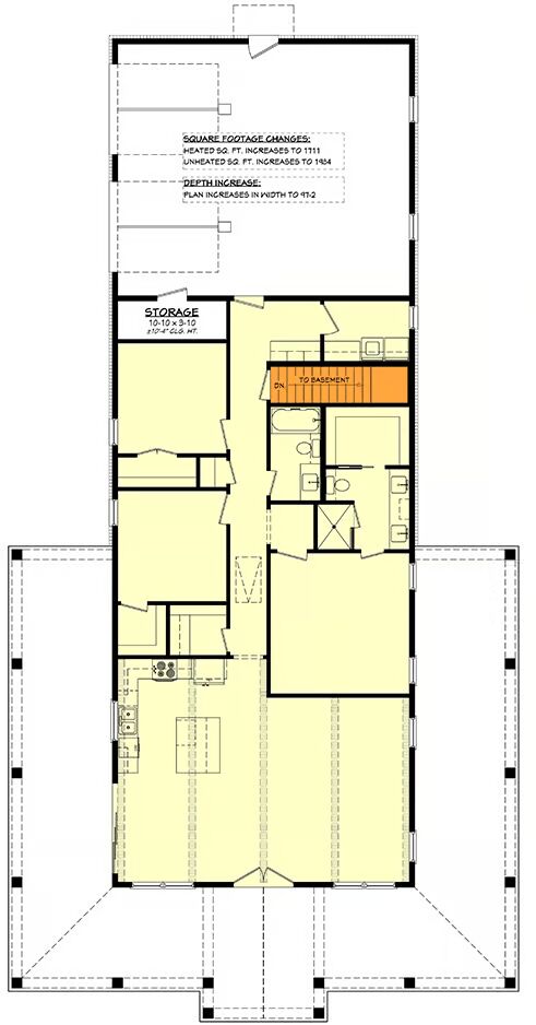
Welcome to the gallery of photos for the Barndominium House with Wrap-Around Porch – 1635 Sq Ft. The floor plans are shown below:








This inviting barndominium-style home offers 3 bedrooms, 2 bathrooms, and an oversized 2-car garage, blending rustic charm with modern convenience. Designed with conventional wood framing and 2×6 exterior walls, it features a thoughtful layout and spacious design.
At the heart of the home, the open-concept living area boasts soaring 14-foot ceilings, a functional walk-in pantry, and a kitchen with eat-at bar, perfect for casual dining and entertaining.
Outdoor living is maximized with a 10′-deep semi wraparound porch that extends across three sides of the home, including a vaulted front section, for a total of 1,170 sq. ft. of covered outdoor space.
The 765 sq. ft. rear garage provides ample storage and workspace with two 9′ x 10′ overhead doors on the left and a convenient man door on the back wall.
=> Looking for a custom Barndominium floor plan? Click here to fill out our form, a member of our team will be in touch.
