Specifications
- Area: 2,000 sq. ft.
- Bedrooms: 3
- Bathrooms: 2.5
- Stories: 1
- Garages: 2
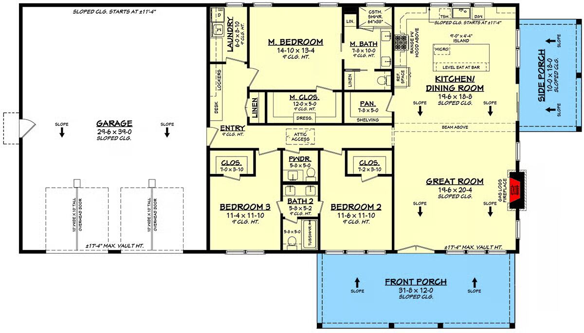
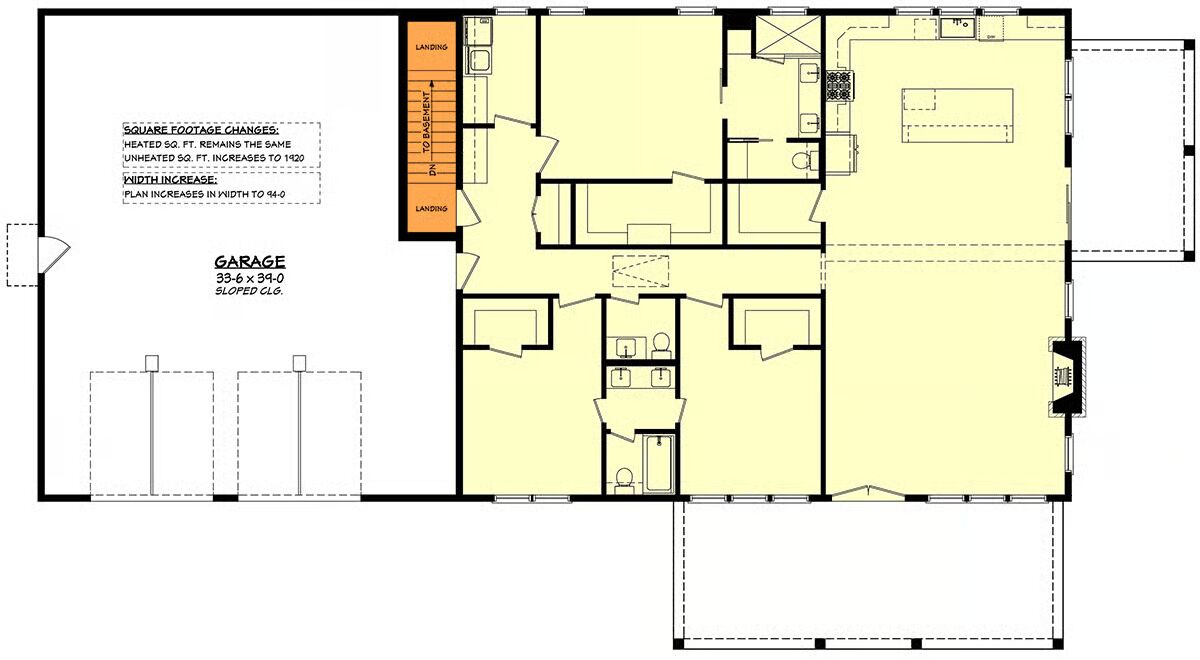
Welcome to the gallery of photos for the Barndominium House with Two-Story Great Room – 2000 Sq Ft. The floor plans are shown below:








This barndominium-style home blends modern comfort with rustic appeal, offering 3 bedrooms and 2.5 baths across a thoughtfully designed open layout.
The great room, dining area, and kitchen flow seamlessly together beneath a lofty sloped ceiling accented by clerestory windows, filling the space with natural light and enhancing its airy, spacious feel.
The kitchen is equipped with an eat-at island bar and a walk-in pantry, perfect for both everyday living and entertaining, while a cozy fireplace anchors the great room.
An oversized garage provides abundant space for vehicles, storage, or a workshop. Built with conventional 2×6 wood framing, this barndominium combines durability, functionality, and timeless style in one exceptional home design.
=> Looking for a custom Barndominium floor plan? Click here to fill out our form, a member of our team will be in touch.
