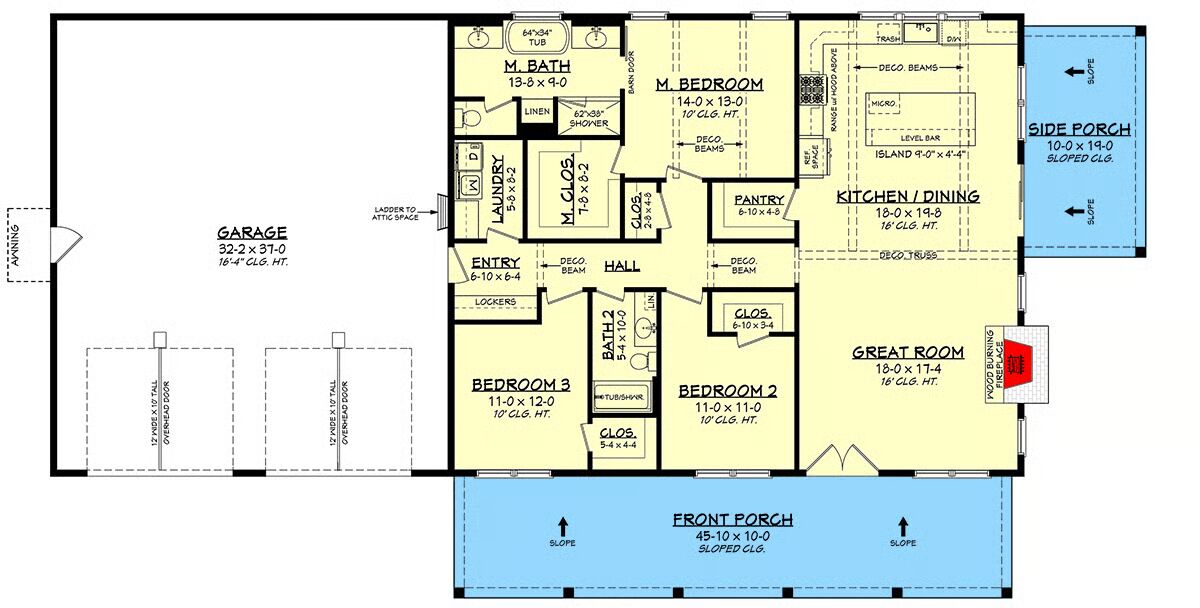
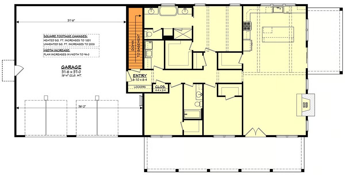
Specifications
- Area: 1,800 sq. ft.
- Bedrooms: 3
- Bathrooms: 2
- Stories: 1
- Garages: 2
Welcome to the gallery of photos for the Barndo-Style Modern Farmhouse with Wood-Burning Fireplace – 1800 Sq Ft. The floor plans are shown below:












This 1,800 sq. ft. modern farmhouse combines timeless charm with functional design, offering 3 bedrooms, 2 bathrooms, and an oversized 1,241 sq. ft. attached garage with space for 2 cars and storage.
At the heart of the home, an open-concept great room, dining area, and kitchen flow seamlessly beneath soaring 16′ vaulted ceilings.
The kitchen is a chef’s delight with a large island and walk-in pantry, while a wood-burning fireplace adds warmth and character to the living space.
The private primary suite serves as a retreat, set apart from two additional bedrooms—each featuring its own walk-in closet.
Outdoor living is just as inviting, with an expansive wraparound porch and side porch, perfect for relaxation and entertaining.
=> Looking for a custom Barndominium floor plan? Click here to fill out our form, a member of our team will be in touch.
