Specifications
- Area: 3,164 sq. ft.
- Bedrooms: 3-4
- Bathrooms: 3
- Stories: 2
- Garages: 2
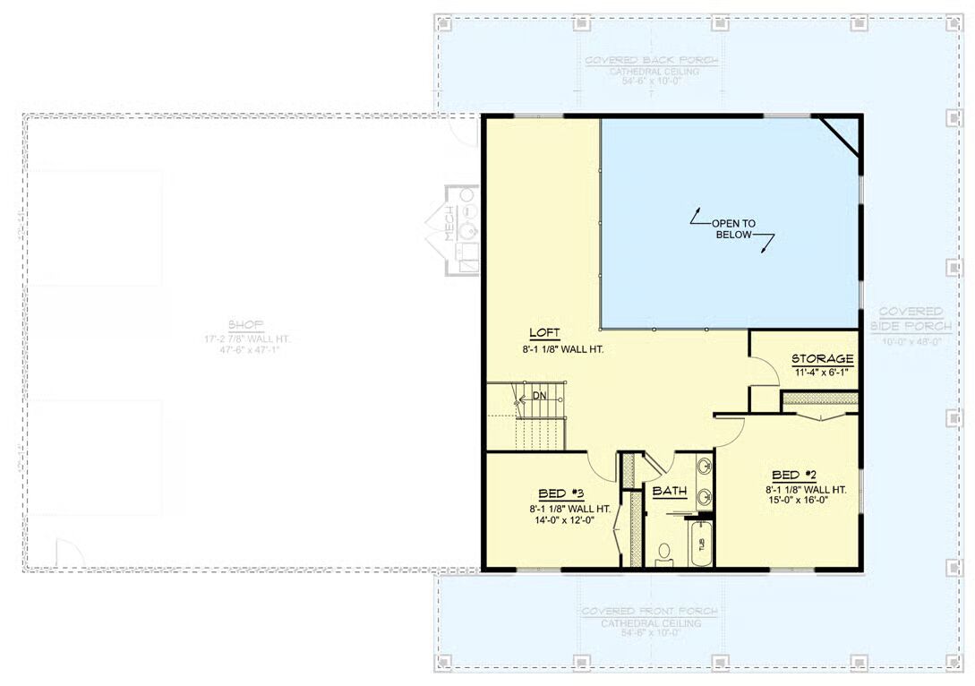
Welcome to the gallery of photos for the 2-Story Barndominium with Home Office and Wraparound Porch. The floor plans are shown below:






This thoughtfully designed two-story barndominium combines budget-conscious efficiency with timeless farmhouse appeal.
Its rectangular footprint ensures cost-effective construction, while a 10-foot-deep wraparound porch enhances both curb appeal and outdoor living.
Step inside to soaring ceilings that unite the great room and dining area, creating a light-filled, open space perfect for entertaining.
The island kitchen features a walk-in pantry and a sink with a picture window above, adding charm and function to the heart of the home.
The main-level master suite is privately tucked away and offers dual closets for ample storage, along with a spa-inspired ensuite showcasing a freestanding tub and double-sink vanity.
A dedicated home office sits just off the foyer, ideal for remote work or study.
Upstairs, a loft overlooks the great room and connects to two secondary bedrooms. A well-designed, compartmentalized bathroom and a dedicated storage room make this space both functional and family-friendly.
Car enthusiasts and hobbyists alike will appreciate the 2,304-square-foot garage, complete with two oversized 12′ x 14′ overhead doors and two walk-in doors, offering endless possibilities for vehicles, projects, or workshop space.
Designed with corrugated metal siding, this barndominium delivers durability, low maintenance, and classic country style—perfect for those seeking a blend of practicality and modern farmhouse living.
=> Looking for a custom Barndominium floor plan? Click here to fill out our form, a member of our team will be in touch.
