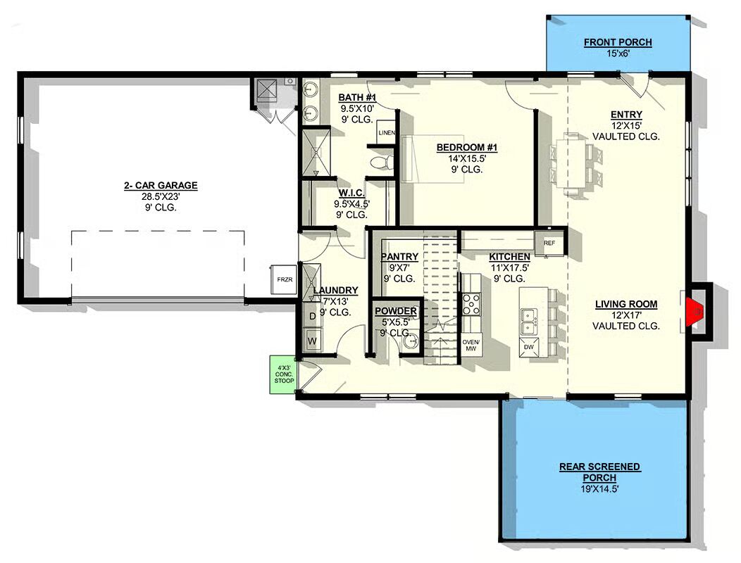
Specifications
- Area: 2,286 sq. ft.
- Bedrooms: 2
- Bathrooms: 2.5
- Stories: 2
- Garages: 2
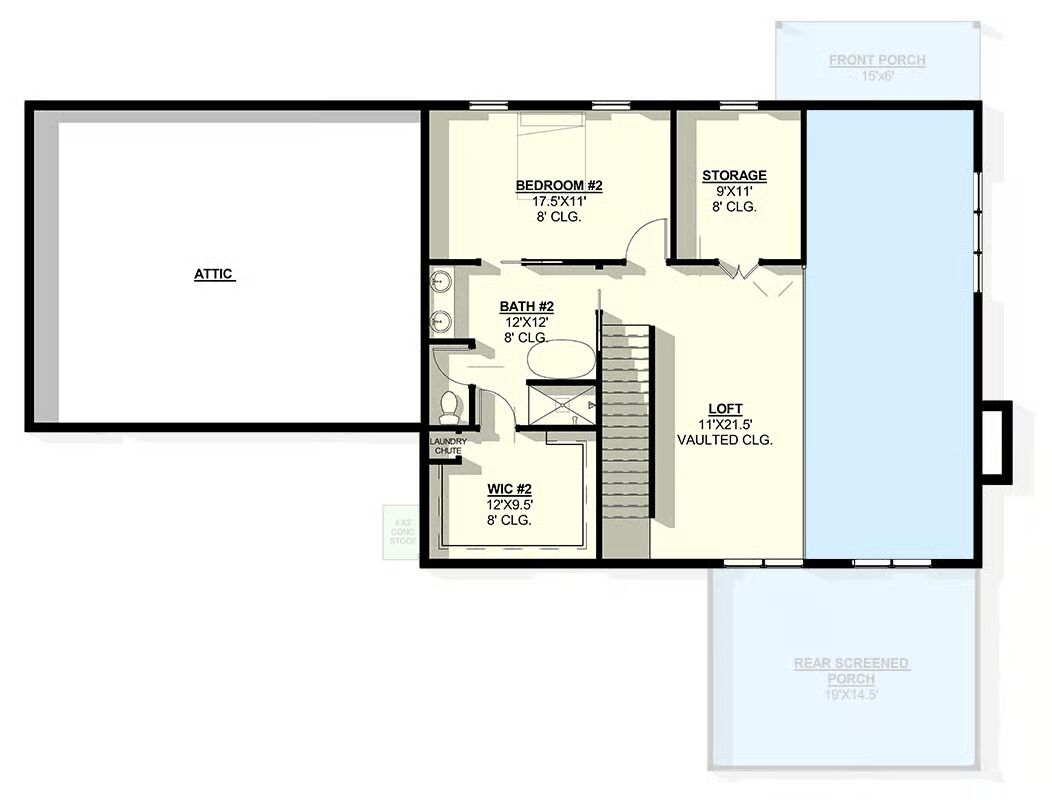
Welcome to the gallery of photos for the Modern Farmhouse with Vaulted Living and Main-Level Master. The floor plans are shown below:









This modern farmhouse offers 2,286 sq. ft. of thoughtfully designed living space, featuring 2 bedrooms, 2.5 baths, and an attached 700 sq. ft. two-car garage.
Wrapped in classic board-and-batten siding with a striking metal roof, this home blends rustic charm with modern sophistication.
Step through the dramatic vaulted entry, where light pours into the spacious living room, creating an airy and inviting atmosphere perfect for contemporary living.
The open-concept main floor showcases a gourmet kitchen with a central island, a cozy breakfast nook, and a butler’s walk-in pantry, offering the ideal setting for both casual meals and elegant entertaining.
The private main-level master suite provides a tranquil retreat complete with a generous walk-in closet and direct access to the laundry room for added convenience. Upstairs, a spacious second bedroom suite and a vaulted loft offer flexible living options for guests or a home office.
Outdoor living is equally inviting, with a charming 90 sq. ft. front porch perfect for morning coffee and an expansive 286 sq. ft. screened rear porch, ideal for al fresco dining or relaxing in the evening breeze.
Blending comfort, elegance, and functionality, this modern farmhouse delivers timeless appeal and seamless indoor-outdoor living.
=> Looking for a custom Barndominium floor plan? Click here to fill out our form, a member of our team will be in touch.
