Specifications
- Area: 2,724 sq. ft.
- Bedrooms: 2
- Bathrooms: 3
- Stories: 2
- Garages: 2
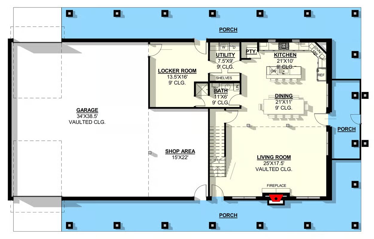
Welcome to the gallery of photos for the Modern Barndominium House with Wrap-Around Porch and Vaulted Loft. The floor plans are shown below:












This striking 2,724 sq. ft. Barndominium-style home combines modern sophistication with functional design, featuring 2 bedrooms, 3 full baths, and an expansive 1,736 sq. ft. attached 2-car garage with shop space — all wrapped in a sleek metal exterior that exudes contemporary charm.
Step inside to a bright and open-concept living area, where a vaulted great room with a cozy fireplace seamlessly connects to the dining area and chef-inspired kitchen.
The kitchen shines with a large center island perfect for casual gatherings and a butler’s walk-in pantry, offering both convenience and style.
The main level also includes a spacious utility room and a locker room with a full bath, designed for modern-day practicality and effortless organization.
Upstairs, you’ll find two comfortable bedrooms and two additional full bathrooms, providing plenty of space for family or guests.
A versatile vaulted loft on the second floor adds flexible living potential — perfect for a home office, media lounge, or creative retreat. Meanwhile, the oversized garage with a built-in workshop caters to hobbyists and DIY enthusiasts alike.
Outdoor living is at its best with an impressive 1,545 sq. ft. wrap-around porch, offering abundant covered space to enjoy morning coffee, unwind in the evenings, or entertain guests in comfort and style.
=> Looking for a custom Barndominium floor plan? Click here to fill out our form, a member of our team will be in touch.
