Specifications
- Area: 1,649 sq. ft.
- Bedrooms: 2
- Bathrooms: 2.5
- Stories: 2
- Garages: 2
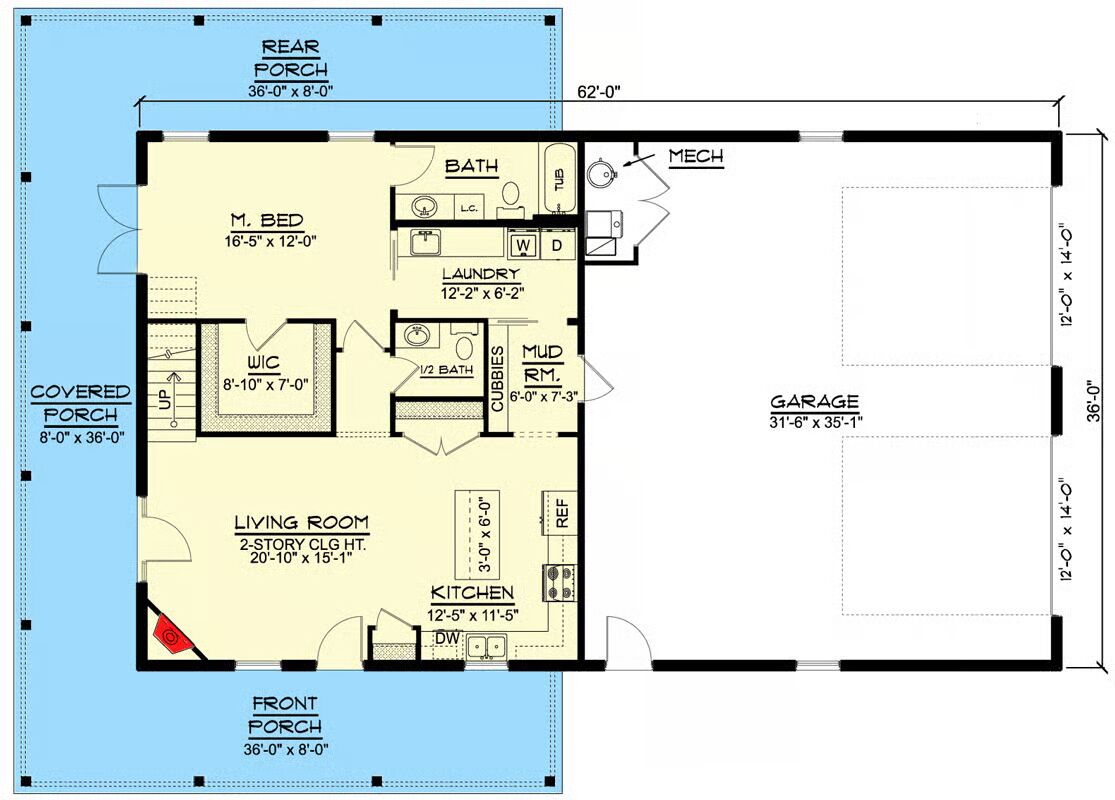
Welcome to the gallery of photos for the 1600 Square Foot Barndominium-Style House with 2-Car Side-Entry Garage. The floor plans are shown below:


Buy This Plan






This 1,649 sq. ft. barndominium-style home blends rustic charm with modern convenience, featuring durable 2×6 exterior walls, corrugated metal siding, and a massive 1,152 sq. ft. side-entry garage.
Wrapped by 849 sq. ft. of porch space on three sides, the home invites relaxed outdoor living and seamless indoor-outdoor flow.
Step inside to a dramatic 2-story living room with a cozy corner fireplace, open to the kitchen. The kitchen boasts an oversized island with seating, abundant workspace, and a double sink perfectly placed beneath a window overlooking the front porch.
The main-level primary suite offers a private retreat with a full bath, direct laundry access, and its own entry to the side porch. A convenient mudroom off the garage keeps daily essentials organized.
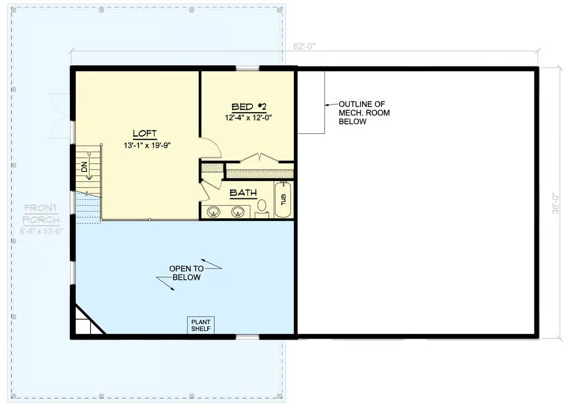
Upstairs, a loft overlooks the living room below, while a spacious secondary bedroom and dual-vanity bath complete the second level.
=> Looking for a custom Barndominium floor plan? Click here to fill out our form, a member of our team will be in touch.
